MENU
7階/2K/28.62㎡
5階/1K/17.55㎡
3階/1K/17.55㎡
8階/1K/17.55㎡
3階/1K/17.3㎡
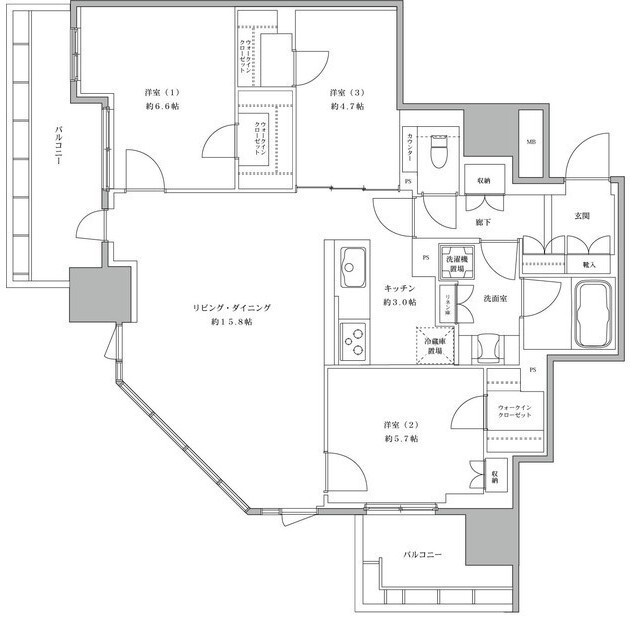
22階/3LDK/82.57㎡
1階/1K/16.57㎡
5階/2LDK/52.93㎡
1階/3LDK/79.6㎡
2階/1K/21.01㎡